Open/Close Toolbox
This work is licensed under a Creative Commons Attribution 3.0 New Zealand License
Item Type: Maps and Plans
Copyright
This work is licensed under a Creative Commons Attribution 3.0 New Zealand LicenseThis licence lets you distribute, remix, tweak, and build upon this work, even commercially, as long as you credit us for the original creation. This is the most accommodating of the licences offered, in terms of what you can do with our works licensed under Attribution.
Menu
Click on the image to add
a tag or press ESC to cancel
a tag or press ESC to cancel
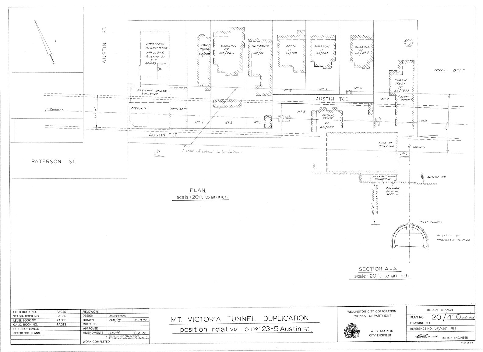
Mount Victoria Tunnel duplication, details of affected properties east of 123-125 Austin Street. Archives Online, accessed 21/05/2026, https://archivesonline.wcc.govt.nz/nodes/view/128131






